bag-delivery
Same day dispatch*
delivery
Next day delivery*
shape-star
4.9/5 on Reviews.io
contactless-card
Secure payments

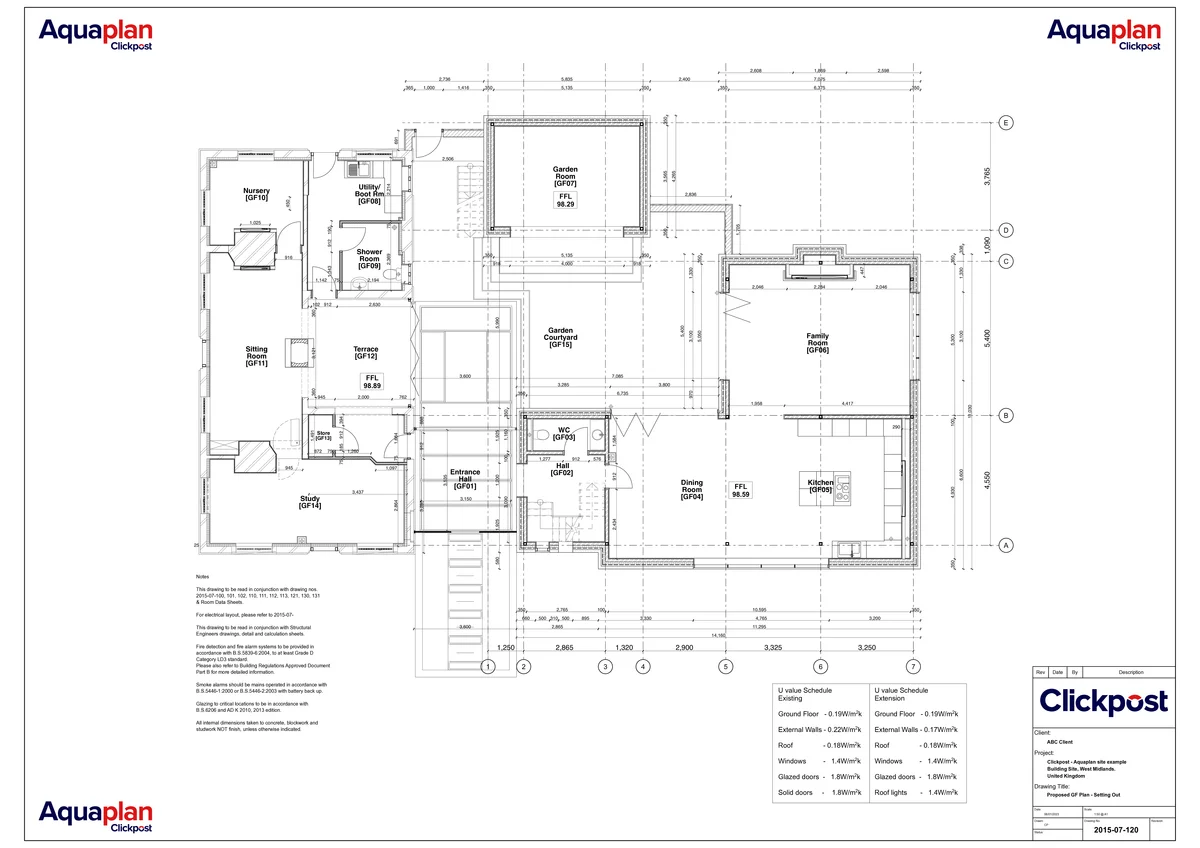
Keeping it in the corner: The art of placing title blocks on technical drawings

Learn why title blocks belong in the bottom right corner and how ISO standards keep your drawings tidy, professional, and readable.

ISO 5457 technical drawing title block positioned in the bottom right corner of an engineering drawing
Example of an ISO 5457 compliant title block layout for technical engineering drawings.

Why Title Block Placement Matters

The title block is the drawing’s passport. It tells you what the drawing represents, who created it, and whether it is the latest version. Without it, even the clearest design can be confusing.

According to ISO 7200:1984, every technical drawing must include a title block containing essential information such as the drawing title, unique identification number, owner, and revision details. The key section known as the identification zone must remain readable when the drawing is folded for storage or filing. To achieve this, the maximum block width is limited to 170 mm, ensuring it fits neatly within the visible area of a folded A4 front page.

Close-up of a technical drawing sheet showing the ISO-standard title block located in the bottom right corner for A1 format, following ISO 5457 and ISO 7200.
The ISO layout ensures the title block remains visible and legible after folding.

Where to Place the Title Block

Placement is not a matter of style. It is governed by ISO 5457:1999. This standard specifies that for drawings sized A0 to A3, the title block must be positioned in the bottom right-hand corner of the drawing space. These larger sheets are always used horizontally. For A4 sheets, the title block moves to the bottom edge, as these are presented vertically. This consistent placement ensures your title block is always the first thing visible when a folded plan is opened.

The Science Behind Paper Sizes

The ISO A series paper sizes defined in ISO 216:2007 make all of this possible. Each sheet in the A series is exactly half the size of the next one up. A0 folds to A1, A1 to A2, and so on, while maintaining the same proportions defined by the square root of two ratio. This clever geometry ensures that your title block always ends up in the correct place, no matter the sheet size.

Folding for Function

When a drawing is folded to A4 for filing, the folds are designed so that the bottom right corner, where the title block is placed, forms the front face of the folded sheet. The result is that even an A0 drawing folds neatly with its title block clearly visible, ready for identification at a glance.

A Small Detail with a Big Impact

Following these ISO standards, 5457, 7200, and 216, keeps every drawing consistent, professional, and easy to manage. It is a small design choice that saves time, prevents confusion, and maintains professional presentation across industries. In short, keeping your title block where it belongs is not only about compliance but also about craftsmanship.

Precision in Every Detail

At Clickpost, we print plans with the same attention to accuracy as the drawings themselves. Whether you are producing A0 architectural layouts or compact A4 schematics, your title block will stay crisp, clear, and in the right place.

Ready to print your plans?

Choose Clickpost for professional plan printing in A0, A1, A2, A3, and A4 sizes. Folded, rolled, and always ISO perfect.